We are working right now!
Clear filter
Advanced searchHide filters


Filter by complexes
Buy
Request a home
* Mandatory fields Subscribe to newsletter:
Reviews
17-03-2025Alexander and Elena review of cooperation with the Bulgarian House company
14-02-2025Feedback from Alex and Adele from Israel on cooperation with the Bulgarian House
14-02-2025Feedback from Mikhail and Elizabeth on cooperation with the Bulgarian House
03-12-2024Anna (Ukraine)

I would like to express my deep gratitude to BolgarskiyDom for itsRead full review

All reviews
Order the selection of housing from our specialist
Filter by complexes

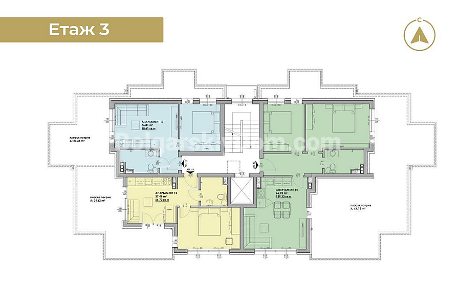
ID 15351 Apartments from the developer in Casablanca

City:
Chernomorets

from 81 270 €

Price for sq. m.: 1 290 €
Area: 63 sq. m.
Floor: 1   Total:4
Rooms number: 2
The number of bathrooms: 1
Distance to sea: 400 м
Year-round accommodation: Yes
Sea View: No
Swiming pool: No
Furniture: No
Maintenance fee: -
Object status: Available
Request video
* Mandatory fields Hide

Ask me

Thanks for asking the question.
I will contact you shortly.

Object description:

A luxury property in the primary market catalog from Bolgarskiy Dom! Only fifteen spacious apartments in a new boutique project in Chernomorets by a reliable developer, Casablanca! The key advantage of this offer is the complete absence of an annual maintenance fee. The property is located in the very heart of the town, just steps away from the sandy beach and seaside promenades. The modern architectural concept with clean lines and an elegant facade гармонично blends with the coastal atmosphere. Large windows ensure an abundance of natural light throughout the day.

The layouts are thoughtfully designed to maximize comfort and privacy. High-quality materials and stylish design emphasize the exclusive status of the property. Wide terraces offer beautiful views of the surrounding nature. For car owners, there is an option to purchase a private parking space. The developer offers convenient installment payment plans. All city infrastructure, including restaurants and shops, is within walking distance.

Order-to-date price
* Mandatory fields

Similar offers

20
ID 8393 Apartments from the developer in Marina Hill
Chernomorets
from 88 500 €
Rooms: at choice
Distance to sea: 500 m.
Floor: at choice
Area: 68 sq. m.
An interesting offer from a developer in Chernomorets! Several apartments have gone on sale in the Marina Hill residential complex, which is open all year round and is located half a kilomete... Details
20
ID 14486 Two-bedroom apartment in Flores Garden
Chernomorets
199 000 €
Rooms: 3
Distance to sea: 100 m.
Floor: 3
Area: 126 sq. m.
Sea view
Sea-view property in the most family-friendly format! Our catalog now features a spacious apartment that has a special value: an incredible sense of freedom and comfort. Its area is 126 sq.m.,... Details
14
Credit
ID 14650 Apartments from the developer in Sunny Island Bohemia
Chernomorets
from 244 000 €
Rooms: 2
Distance to sea: 100 m.
Floor: 1
Area: 101 sq. m.
Sea view
Special, hot offer from the developer: the start of sales in the new premium complex Sunny Island Bohemia! This is your opportunity to invest in elite real estate with a good starting price an... Details
28
ID 10457 Houses in Chernomorets
Chernomorets
from 300 000 €
Rooms: 4
Distance to sea: 100 m.
Floor: 3
Area: 269 sq. m.
Sea view
Luxury villa in Sunny Island! Hot offer from Bolgarskiy Dom agency in Chernomorets – a three-story house from an investor with a separate plot for sale. It is planned to build elite houses for... Details
25
ID 14143 House in Sunny Island
Chernomorets
from 300 000 €
Rooms: 4
Distance to sea: 100 m.
Floor: 1
Area: 296 sq. m.
Sea view
Hot new listing in Chernomorets — an exclusive offer from Bolgarskiy Dom: a seaside estate in the Sunny Island residential complex, just 100 meters from the beach. This is your personal territ... Details
35
ID 14144 Townhouse in Sunny Island
Chernomorets
from 300 000 €
Rooms: 4
Distance to sea: 100 m.
Floor: 1
Area: 250 sq. m.
Sea view
New from Bolgarskiy Dom — the boutique complex Sunny Island Residence in Chernomorets. Located in the Akladie area, just three minutes to the picturesque Simple Beach with the Blue Flag, views... Details
7
ID 15255 House with sea view in Chernomorets
Chernomorets
599 000 €
Rooms: 6
Distance to sea: 200 m.
Floor: 3
Area: 228 sq. m.
Sea view
Introducing a truly unique property now available for sale! An autonomous house on the second sea line in Chernomorets — a home with its own heated swimming pool and views of two bays. The pro... Details
Register
Thank you.
Hidden objects are now available for you to view.
Error sending.
Refresh the page and try again.
Get full information
Photos and location
Thank you.
You now have access to view exclusive listings.
Submission error.
Reload the page and try again.
Top